
型號含義 Model implication
適用范圍 Application
適用范圍相應的配裝燈具。
Can be us in zone same as equipped lamp.
產品特點 Features
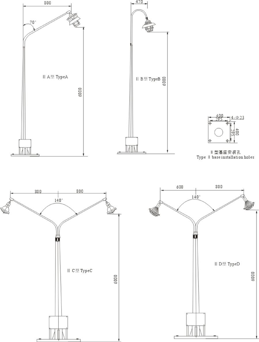
1、路燈由防爆燈、燈桿、基座三部份組成。基座內裝接線箱或路燈專用鎮流器。
2、燈桿為鍍鋅鋼管表面噴塑。具有較好的防腐能力。基座采用鑄鐵制造。牢固穩定, 燈桿和基座均可根據用戶要求特制。
3、01、02、05、06型可根據用戶要求配裝燈傘。
4、符合GB3836—2000,IEC60079標準要求。
1、The road lamp consists of explsion-proof lamp,lamp pole,base. Inside the base, jumction box or special ballast of road lamp is installed.
2、Lamp pole is galvaniced pipe with plastic-sprayed surface. It can be well corrosive-proof. The base made of cast iron is steadly fixed. Lamp pole and base can be specially made as required.
3、Type 01、02、05、06can install lamp cover to user's requirement.
4、Suitable for GB3836-2000, IEC60079 standard request.
燈具代號 Lamp code
配用光源 Supplied with lamps
外形及安裝舉例 Outline and mounting example




